Endüstriyel Mutfak
Sanatın başladığı yer
Mutfaklar, otel ve restoranların sanatının başladığı yerlerdir ve bu mekanların içsel estetiğini ve işlevselliğini belirleyen en önemli unsurlardan biridir. Projelendirme süreçlerinde, mutfakların tasarımı, hem profesyonel aşçılar için verimlilik sağlarken hem de misafirlerin deneyimlerini zenginleştirecek şekilde düşünülmelidir. Kapasiteden malzeme akışına, aydınlatmadan havalandırmaya kadar birçok faktör, mutfakların sanatını ve işlevselliğini etkileyen kritik unsurlardandır. Modern gastronomi trendleri göz önünde bulundurularak yapılan projelendirmeler, yenilikçi çözümler sunarak, hem lezzet hem de görsel sunum açısından unutulmaz deneyimlerin kapısını aralayabilir. Rasyonel bir tasarım anlayışı ile estetik mutlaka bir araya getirilmeli, mutfaklar gerçek bir sanat alanı haline getirilmelidir.


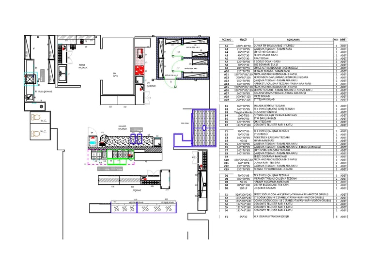
Projelendirme detayı ve süreci
Müşterinin istek ve talepleri doğrultusunda otel restoran mutfağı projelendirmesi yaparak, ihtiyaca uygun, verimli ve ekonomik çözümler sunuyoruz. Amacımız, uzun süreler boyunca kullanılabilecek, işlevsel ve estetik bir mutfak tasarlamaktır. Projelerimizde, müşteri memnuniyetini ön planda tutarak, modern mutfak ekipmanlarını ve düzenlerini entegre ediyoruz. Ayrıca, iş akışını optimize eden planlamalarla daha verimli çalışma alanları oluşturuyoruz. Profesyonel ekibimiz, mutfak tasarımı sürecinde kaliteyi ve maliyet etkinliğini dengeli bir şekilde sağlamak için titizlikle çalışmaktadır. Bütün bu süreçlerde, müşteri ile sürekli iletişim kurarak, onların beklentilerini en iyi şekilde karşılamayı hedefliyoruz. Böylece, hem işletme sahipleri hem de mutfak çalışanları için konforlu ve pratik bir çalışma ortamı yaratıyoruz.


Ücretsiz keşif desteği
Otel ve restoran mutfağı konusunda deneyimli çalışanlarımızla birlikte, işletmenizin ihtiyaçlarına uygun çözümler sunmak için buradayız. Ücretsiz keşif ve projelendirme hizmetimizle, mutfağınızın verimliliğini artıracak en iyi tasarımlar üzerinde çalışıyoruz. Müşteri memnuniyetini ön planda tutarak, mutfak alanınızdaki her detayı titizlikle değerlendiriyoruz. Bizimle iletişime geçerek, detaylı bilgi alabilirsiniz.


